Skonfiguruj mieszkanie pod Twoje preferencje
- Srebrny szlak
- Oferta
- Budynek 2
- Apartament
Specyfikacja
Sprawdź standard swojego mieszkania
Specyfikacja
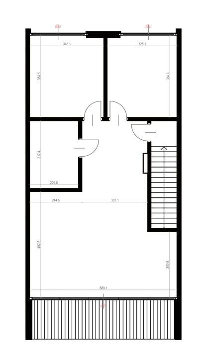
Sprawdź wielkość pomieszczeń
83.79 m2 |
całkowita powierzchnia |
11.88 m2 |
klatka schodowa |
6.52 m2 |
korytarz |
2.55 m2 |
garderoba |
31.15 m2 |
salon z aneksem kuchennym |
6.71 m2 |
łazienka |
12.95 m2 |
pokój |
12.03 m2 |
pokój |
Cena sprzedaży
749 000 zł
8 939zł za 1m2
Lub
Cena wynajmu
3 800 zł
Dostępny
Formularz kontaktowy
Formularz kontaktowy
Wiadomość wysłana pomyślnie!
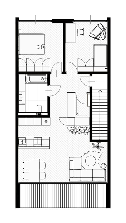
Opis
Apartament na piętrze składa się z 5 pomieszczeń o łącznej powierzchni 83,79m2. Mieszkanie wykończone jest do stanu deweloperskiego. W standardzie oprócz pełnej instalacji elektrycznej zawiera także instalacje pod fotowoltaikę oraz pod system inteligentnego domu. W całym apartamencie zastosowane jest ogrzewanie podłogowe za pomocą pieca elektrycznego, a do ogrzewania wody użyty został bojler elektryczny. W celu zapewnienia prawidłowej wentylacji pomieszczeń w całym budynku zainstalowana została rekuperacja. Dla osób chcących zwiększyć standard apartamentu, umożliwiamy wybranie dodatkowych opcji tj. klimatyzacja, trawa z rolki, rolety zewnętrzne i inne znajdujące się w konfiguratorze.
Zobacz rzut - 360°
X


